
- Modello: VK-SPAF
- Metodo di misurazione: misurazione e alimentazione della coclea
- Intervallo di peso: 50-500 g
- Precisione: 2%
- Velocità: 10-30 bottiglie/min
- Tensione: 220V (personalizzabile)
- Tramoggia: 25L
- Ugelli di riempimento: 10 mm (un altro per 15 mm, 18 mm, 20 mm, 25 mm)
- Potenza: 1,2 kW
- Peso GN: 230/200 kg
- Dimensioni: 800×850×2000mm
Questa macchina riempitrice di polvere è completamente realizzata in acciaio inossidabile, il sistema di riempimento è azionato da un servomotore e un riduttore esente da manutenzione di Taiwan è utilizzato per il motore di agitazione, l'armadio del prodotto è specificato come completamente chiuso, controllo della pressione dell'aria della serranda, realizzato in acciaio inossidabile e vetro. Il dispositivo di estrazione della polvere è montato nella bocca del tubo di riempimento, progettato per un tavolo di lavoro riutilizzabile regolabile in altezza, con un cassetto per i prodotti di scarto sotto il tavolo.
Caratteristiche principali delle macchine riempitrici di talco per bambini semiautomatiche


Realizzato in acciaio inossidabile: completamente conforme ai requisiti GMP o ad altre certificazioni di igiene alimentare, adatto al confezionamento di prodotti chimici corrosivi;
Maggiore stabilità nel riempimento e maggiore precisione nella pesatura;
Il sistema di riempimento è azionato da un motore passo-passo, ad alta precisione, coppia elevata, lunga durata operativa e giri al minuto impostabili;
Per l'agitazione del motore viene utilizzato un riduttore esente da manutenzione prodotto a Taiwan: basso livello di rumorosità, lunga durata operativa, esente da manutenzione per tutta la vita;
Progettato per condizioni di lavoro variabili in qualsiasi momento;
È possibile salvare fino a 10 ricette per un utilizzo successivo;
Il materiale di contatto è in acciaio inossidabile alimentare 304;
L'armadio del prodotto è completamente chiuso, con controllo della pressione dell'aria umida e realizzato in vetro e acciaio inossidabile, il movimento del prodotto nell'armadio è chiaro a colpo d'occhio, nessuna perdita di polvere, il dispositivo di estrazione della polvere montato nella bocca del tubo di riempimento garantisce un ambiente di impianto pulito;
Grazie alla possibilità di sostituire gli accessori, la macchina è adatta a molteplici prodotti, indipendentemente dalla grana superfine o dalla grana più grossa.
Specifiche della macchina riempitrice di polvere di alimentazione di misurazione della coclea
| Modello | VK-SPAF |
| Metodo di misurazione | Misurazione e alimentazione della coclea |
| Gamma di peso | 50-500g |
| Precisione | 2% |
| Velocità | 10-30 bottiglie/min |
| Voltaggio | 220V (personalizzabile) |
| Tramoggia | 25L |
| Ugelli di riempimento | 10mm (un altro per 15mm、18mm、20mm、25mm) |
| Energia | 1,2 kW |
| Peso GN | 230/200 kg |
| Misurare | Dimensioni: 800×850×2000mm |
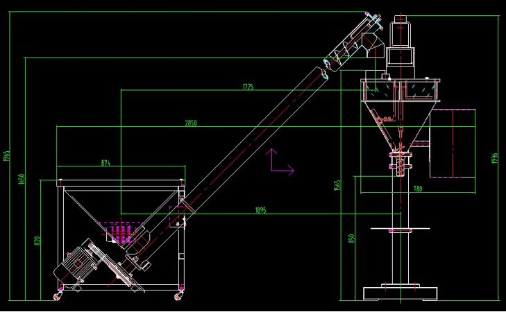
Illustrazione della macchina di riempimento della polvere


Dettagli


Elevatore a coclea Alimentazione Materiali Caricamento e Alimentatore

Installazione per l'alimentazione e il caricamento dei materiali
Interruttore a due direzioni; rotazione avanti/indietro rispettivamente per l'alimentazione dei materiali e lo scarico dei materiali dall'uscita inferiore.
Il giunto albero-riduttore non può essere bloccato. Dopo l'installazione il giunto albero-riduttore deve essere resistente alla trazione e flessibile per evitare danni da bruciatura dovuti a sovraccarico nel motore. Durante l'installazione il bullone flangiato può essere regolato correttamente.
L'estremità del perno della coclea non deve mai essere fissata troppo stretta per evitare che la coclea rotante tocchi la parete del tubo a causa della coclea piegata. Si prega di avvitare saldamente il dado per fissare il perno in modo da fissarlo. Ogni volta che la coclea viene estratta per la pulizia e la reinstallazione, si dovrebbe considerare questo punto.
Il volume e l'altezza dell'elevatore possono essere integrati con la macchina imballatrice mediante induzione in serie. Non vi è alcun materiale di alimentazione dall'elevatore senza materiali nel serbatoio.
Il giunto dell'elevatore funziona con la macchina riempitrice di polvere, alimentandola e arrestandola automaticamente.
Parametro tecnico per ascensore

| Trasferimento del volume | 1 milione3/Ora (integrato con macchina riempitrice) |
| tramoggia | 100L |
| Altezza di elevazione | 2000mm |
| Potenza del motore | 1,5 kW |
| Fornire potenza | 380V/50-60Hz |
| Altezza tra tramoggia e terreno | 800-900mm |
| Marca del motore | Giulio |
| Materiali della tramoggia | SS304, Spessore 1,50 mm |
| Tubo per alimentazione trasferimento materiali | SS304, Diametro: 103mm, Spessore: 3,00mm |
| Coclea | SS304, spessore 3,00 mm |
| Lancia | SS304, diametro 35mm |
| Peso | 150KG |
| Misurare | 1900*880*2100mm (personalizzabile) |
Garanzia: Per tutte le macchine, si dichiara 1 anno di garanzia. (Sono esclusi dalla garanzia i problemi dovuti a incidenti, uso improprio, applicazione errata, danni da stoccaggio, negligenza o modifiche all'attrezzatura o ai suoi componenti. Anche i pezzi di ricambio facilmente rotti non sono inclusi nella garanzia)
Installazione: Dopo che la macchina arriva in fabbrica, se necessario, il nostro tecnico andrà a casa tua per installare e testare la macchina e anche per formare il tuo lavoratore all'uso della macchina (l'orario del treno dipende dal tuo lavoratore). Le spese (biglietto aereo, cibo, hotel, spese di viaggio nel tuo paese) dovrebbero essere a tuo carico e devi pagare al tecnico 150 usd al giorno. Puoi anche andare nella nostra fabbrica per fare la formazione.
Dopo il servizio: Se riscontri un problema con la macchina, il nostro tecnico verrà a casa tua per ripararla il prima possibile. Il costo dovrebbe essere sul tuo conto (come sopra).









